売りたい方・貸したい方
無料相談受付中
無料で物件探します!!
物件リクエスト
資料請求
無料配布中!
054-204-2955
営業時間:9:00~18:00
/ 定休日:土・日・祝日
MENU
トップページ
新築をお考えの方
土地を探したい
賃貸・中古物件を探したい
売りたい/貸したい方
お問い合わせ
会社概要
Fit倉庫|フィット倉庫-静岡の倉庫・工場・事務所建設・土地情報
トップページ
土地を探したい
賃貸・中古物件を探したい
売りたい/貸したい方
お問い合わせ
物件リクエスト
会社概要
お問い合わせ
054-204-2955
賃貸・中古をお探しの方へ
NEW
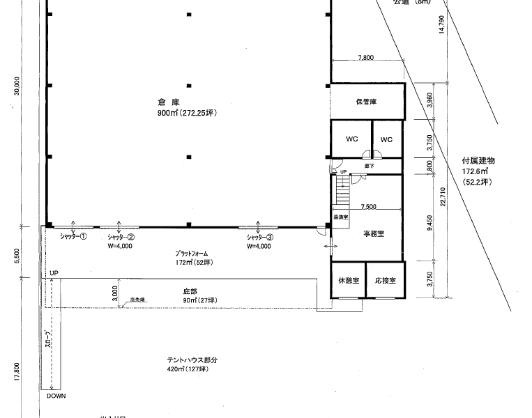
貸倉庫
貸工場
静岡県西部
新居営業所
倉庫にも工場にもおすすめです!
賃料/共益費
81.6
万円
/無
建物/土地
272
坪
/
500
坪
敷金/礼金
1ヵ月/無
償却/敷引/保証金
//無
階数
1階
竣工・構造
鉄骨造
坪単価
3,000円/坪
管理番号
57
現況
空き
引渡
2026年7月頃
住所
静岡県湖西市新居町中之郷
交通
大倉戸ICから9分
舘山寺スマートICから34分
備考
・出入り間口10m、転回スペース有り
10t車やコンテナトレーラー(20t)も搬入可能
・プラットフォーム式&スロープ搬入式
・搬入車両転回スペースには大型テント屋根有り
・入口シャッター幅:4m、梁下有効高:5m
・事務所併設(使用に関しては応相談)
・一般車駐車場10台程度、駐輪場も有り
・3.5tフォーク有り(別途費用)
物件お問い合わせ
賃貸物件一覧に戻る
054-204-2955
お問い合わせ
土地物件
検索
賃貸・中古
検索
新築を
お考えの方
静岡県の倉庫・工場建設を【Fit倉庫】がサポート!物件情報には土地情報をはじめ貸し倉庫や貸し工場物件など、有益な情報が満載です。
静岡県のエリアに精通した不動産のプロがご希望の物件をご提案致します。